Дом на продажу - Объект №9680

Арсенальная ул.

Дом 12 700 000 ₽

Объект № 9680

Новая Пролетарка, Предгорный район, Арсенальная ул.

20251121_150035 20251121_150010 20251121_145426 20251121_145344 20251105_102431 20251105_101617 20251105_102133 20251105_102228 20251105_102001 20251105_101614 20251105_101504 20251105_101637 20251105_102618 20250905_184925 20250905_184912 20250905_184952 20250905_184820 screenshot_20250630_113222_wildberries

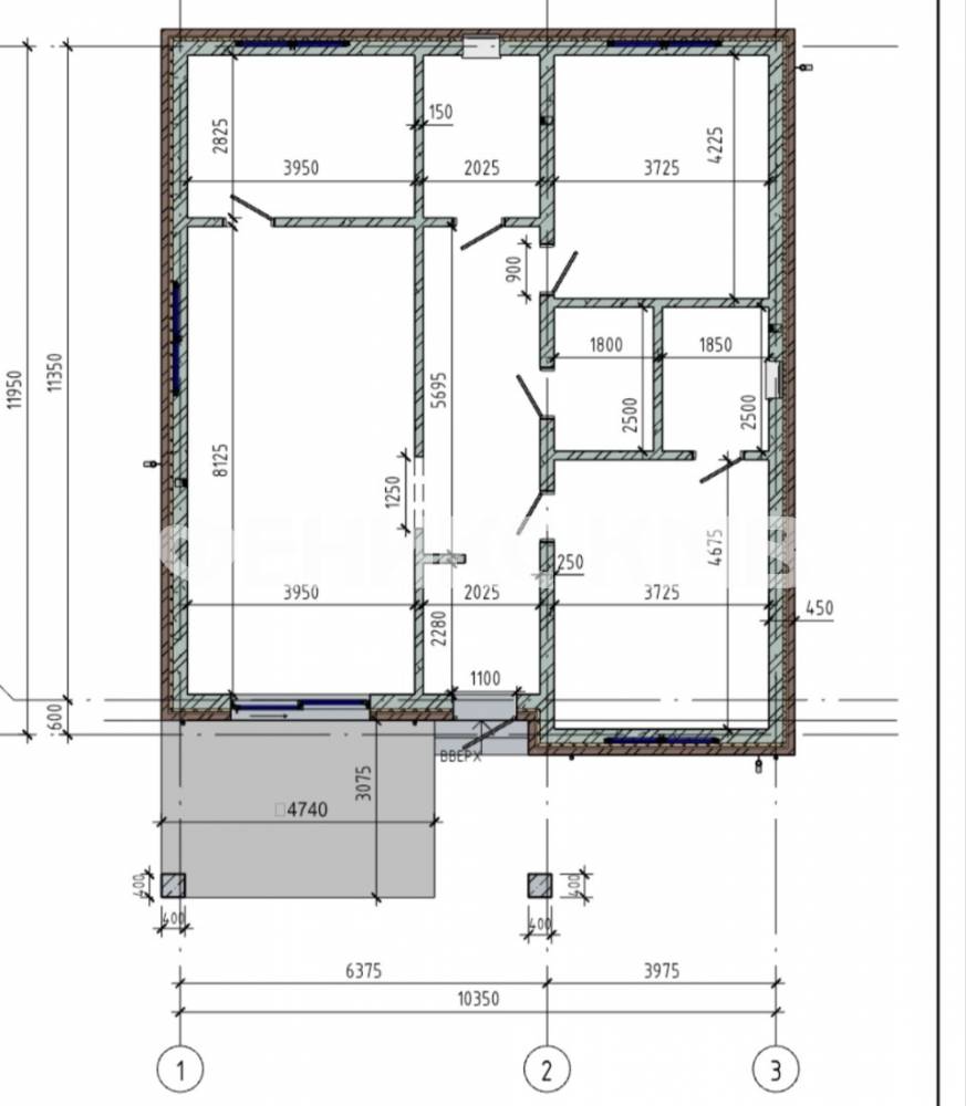
Характеристики объекта

  • Комнаты: Изолированные
  • Кол. ком.: 4
  • Сан. узел: Раздельный
  • Кол. сан. уз.: 1
  • Площадь: 140/75/24
  • Этажность: 1/1
  • Ремонт: Щ
  • Материал стен: Кирпичный
  • Отопление: Индивидуальное
  • Канализация: выгребная яма
  • Сотки: 5

Ольга Константиновна

8 928 285 67 89

Скачать PDF

При звонке назовите Объект № 9680, и мы быстрее найдем необходимую информацию!

Используйте удобный мессенджер и задайте вопрос

Описание

При звонке назовите Объект №9680 , и мы быстрее найдем необходимую информацию!

КУПИТЬ ДОМ ЭКСКЛЮЗИВНОЕ ПРЕДЛОЖЕНИЕ ОТ КОМПАНИИ ФениксКМВ !!!

Продаётся новый дом в живописном районе города Пятигорск.
В доме три спальные комнаты, одна из спален мастерспальня, просторная кухня-гостиная, раздельный санузел,  гардеробная.
Дом находится на стадии строительства, можно внести корректировки в планировку.
Коммуникации все центральные развитая инфраструктура города и остановки общественного транспорта в шаговой доступности.


✅ С НАМИ СТАВКА В БАНКЕ МЕНЬШЕ!
Ипотека без подтвержденного дохода
Ипотека без первоначального взноса.

✅ЮРИДИЧЕСКОЕ СОПРОВОЖДЕНИЕ «ПОД КЛЮЧ»
Жилищные сертификаты
Материнский капитал
Проверка объекта
Подготовка пакета документов

✅ ШИРОКИЙ ВЫБОР НЕДВИЖИМОСТИ ПОД ВАШИ УСЛОВИЯ

✅ПОМОЩЬ В ПРОДАЖЕ НЕДВИЖИМОСТИ В КОРОТКИЕ СРОКИ
Активная реклама
Большая база клиентов
Агентство, которому доверяют !!!

Агентство недвижимости Феникс КМВ, находится по адресу: г.Пятигорск ул.Ессентукская 29д, офис № 10, этаж 3

Эксклюзив

Продажа: Дом
Вин-Сады, Предгорный район, Партизанская ул.

При звонке назовите Объект № 10590, и мы быстрее найдем необходимую информацию!

ЭКСКЛЮЗИВНОЕ ПРЕДЛОЖЕНИЕ ОТ КОМПАНИИ ФениксКМВ !!!
ВСЕ...

Продажа: Дом
Острогорка, Городской округ Лермонтов, 1-ая Красноармейсая линия

При звонке назовите Объект № 10677, и мы быстрее найдем необходимую информацию!

ЭКСКЛЮЗИВНОЕ ПРЕДЛОЖЕНИЕ ОТ КОМПАНИИ ФениксКМВ!!!
ВСЕ ВОПРОСЫ...

Продажа: Дом
Пятигорск, Новопятигорск, Ермолова ул.

При звонке назовите Объект №7416 , и мы быстрее найдем необходимую информацию! ЭКСКЛЮЗИВНОЕ ПРЕДЛОЖЕНИЕ ОТ ФениксКМВ !!!
Продаётся кирпичный дом...

Продажа: Дом
Вин-Сады, Предгорный район, Романенко ул.

При звонке назовите Объект №10109, и мы быстрее найдем необходимую информацию!

ЭКСКЛЮЗИВНОЕ ПРЕДЛОЖЕНИЕ ОТ КОМПАНИИ ФениксКМВ !!!

Продаётся...

Продажа: Дом
Горячеводский, Городской округ Пятигорск, Георгиевская ул.

При звонке назовите Объект №7792 , и мы быстрее найдем необходимую информацию! ЭКСКЛЮЗИВНОЕ ПРЕДЛОЖЕНИЕ ОТ ФениксКМВ !!!
Продаётся тёплый уютный...

Продажа: Дом
Горячеводский, Городской округ Пятигорск, Георгиевская ул.

При звонке назовите Объект №8245 , и мы быстрее найдем необходимую информацию! ЭКСКЛЮЗИВНОЕ ПРЕДЛОЖЕНИЕ ОТ ФениксКМВ !!! Продается кирпичный дом...

Выбрано 0

Вы можете оставить телефон или email для скорейшей связи